Single User Interface (UI/UX) and single Database and Single File Share System for complete process plant life cycle, including following:
- Engineering and Plant Data Hub
- Process Engineering
- 2D Piping Engineering
- Mechanical Equipment Engineering (Static and Rotary)
- Instrumentation and Controls Engineering
- Electrical Engineering
- Drawings and Document Management
- Project Management
- Procurement Management
- Construction Management
- Commissioning Management
- Punch-Points Management
- Start-Up procedure Management
- Complete Digital Handover
- Operation and Maintenance of Plant
- Asset Management
- Reactive, Preventive, Condition based, Predictive and Prescriptive Maintenance
- Corrosion Control document
- Pipeline and static equipment wall thickness monitoring and analysis, thereby complete Asset Integrity Management
- Risk Based Inspection and Risk Assessment
- RCM – Reliability Centred Maintenance
- FMEA Analysis
- KPI monitoring
- Shutdown Planning
- Plant Operator shift Management
- Inspection Rounds
- Events Management
- Work permits
- Work packages with detailed instructions
- Resource planning (Both Human and Hardware)
- LOTO (Lock-Out – Tag-Out) procedures
- Mobile Worker, Digital Helmet integration
- Calibration Management
- Warehouse Management
- Spare parts and stocks management
Core Features:
- Features Detailed Plant Hierarchy suiting all industry.
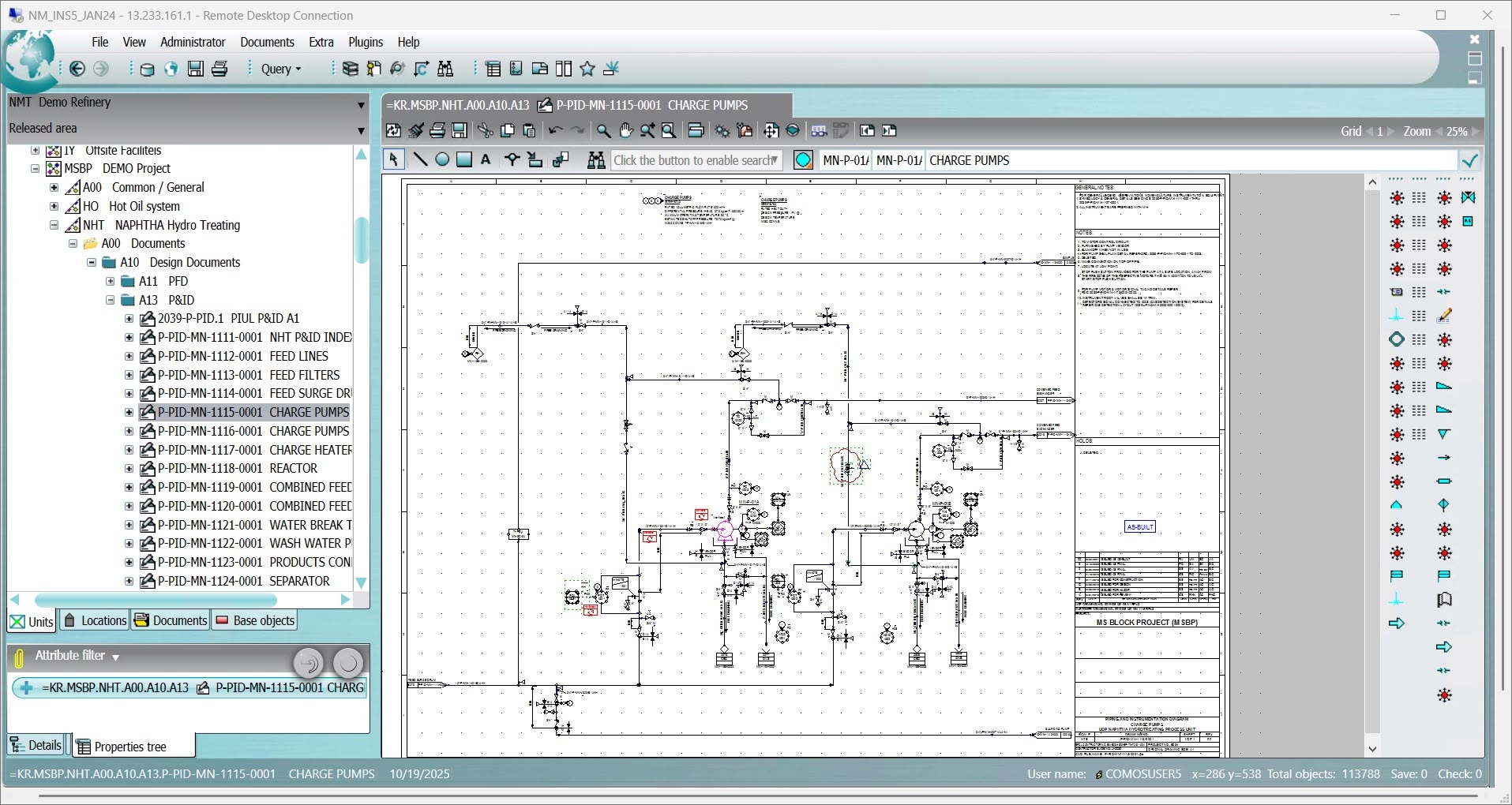
- Assets are registered once in the project. Same Asset is used on all deliverables, as shown below

- Built-in Document Management System:
- Manage Transmittals, Document Revisions, Associate and Link 3rd Party documents
- Support all windows system based generic documents, with built-in viewer like: PDF, Scan files, Image files, AutoCAD files, MicroStation Files, MS Office (Word, PowerPoint, Excel) and such
- Even 3rd Party application files are managed (for viewing native application required) like: Calculation Files of Aspen, CONVAL, even Audio and Video files (mp3, mk4, etc)
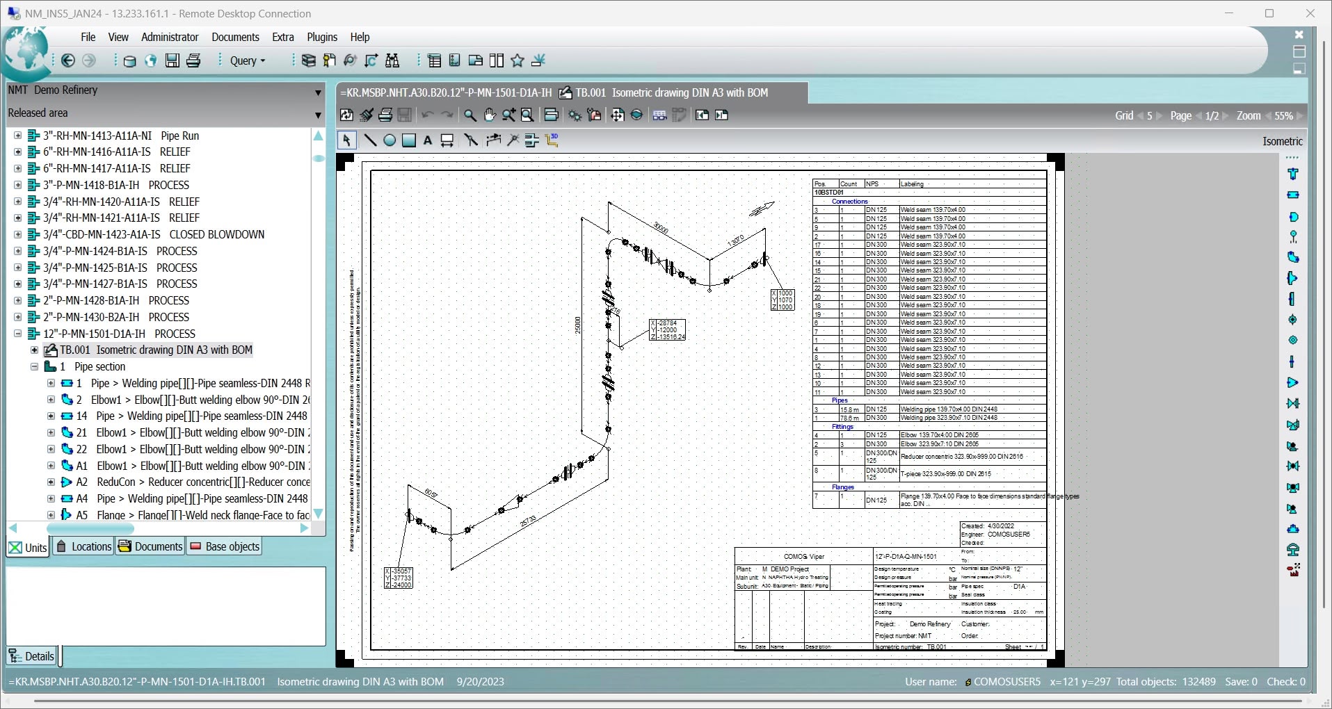
- Built-in Graphics Engine (no 3rd Party Tools are required for creating smart and intelligent drawings)
- Multiple window View
- View drawings, documents, properties, Plant Hierarchy simultaneously, as COMOS offers window docking and dual screen operation
- Bulk printing of document with bulk export to PDF, AutoCAD, other formats, over a button click
- This feature is huge time savings.
- Web Based visualisation available without any extra effort of converting or publishing the drawings
- Web based (over web browsers like: Chrome, Safari, Firefox, Microsoft Edge) data editing, document upload, check-in / check-out, Redline commenting.
- Dashboarding over web without any scripting.
- Create real-time dashboards just by drag and drop
- Virtual Walkthrough with real-time sensor data display via OPC UA connection, conduct Model reviews
- AR / VR based operator training simulator
- Design VR based training environment for plant operators like: Learning topography, HSE practices, SOPs, Start-up procedures, Emergency shutdown routines, Energy isolation and such scenarios
- Integrate your data with 3rd Party application with ease due to object-oriented programming
- Direct interface with SAP (ready connector) for data and documents exchange.
Applications
- Plant Data Hub – Single Source Of Truth in Engineering
- PR – PO Cycle with GeM Integration
- Integrated Multiple Discipline Engineering Environment
- Pharma – GMP document life-cycle Management